








PVC 시스템 창호 표준 시방서 정리
1. 일반 사항
적용 범위: 패시브건축협회 인증 건축물의 PVC 시스템 창호 공사에 적용표준시방서-PVC시스템창호-20210819
자재: KS 규격 또는 동등 이상 품질 자재 사용 원칙표준시방서-PVC시스템창호-20210819
안전 규정: 작업자 안전장구 착용 필수, 안전 비용은 계약에 포함표준시방서-PVC시스템창호-20210819
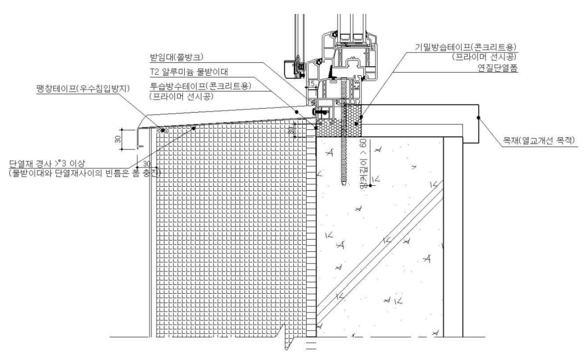
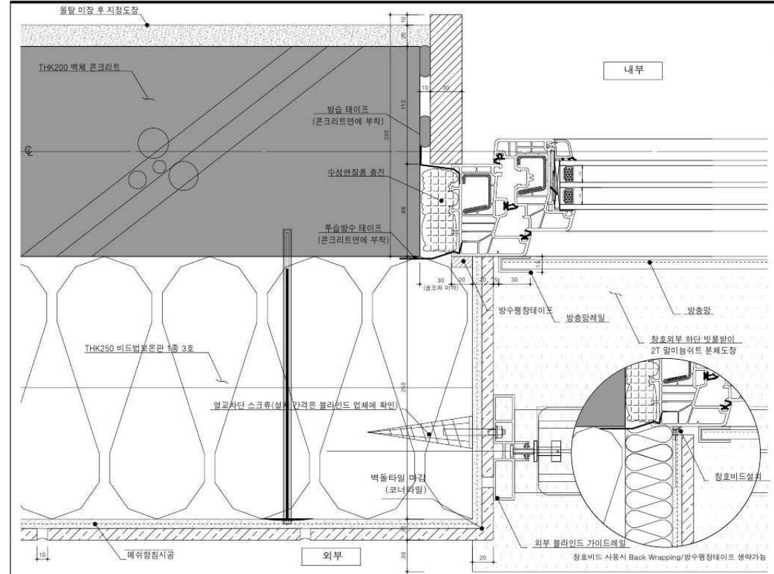
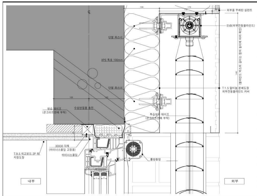
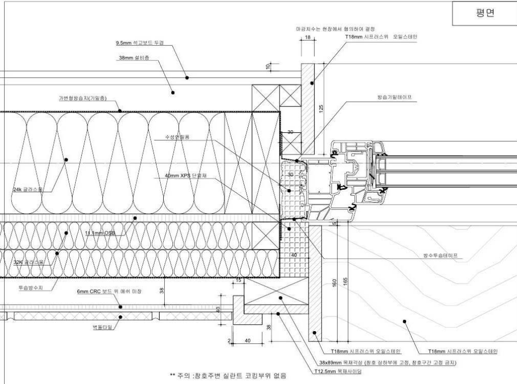
공사 범위: 창호 제작·운반·설치, 기밀 테이프 및 수성 연질폼 충진, 빗물받이 후레싱 포함표준시방서-PVC시스템창호-20210819
2. 성능 요구 사항
열관류율 (Uf, 프레임 기준)
유리
기밀 성능: 1등급 (누기율 0 목표)표준시방서-PVC시스템창호-20210819
간봉: 단열 간봉 적용 (선형열교 ≤ 0.03 W/m·K)표준시방서-PVC시스템창호-20210819
기밀 테이프
내부: 방습/기밀 (투습저항계수 ≥ 7,000)
외부: 방수/투습 (sd값 ≤ 1m, 방수 ≥ 2.5m)표준시방서-PVC시스템창호-20210819
난연폼: 저팽창·난연 성능 (B2 등급 이상)표준시방서-PVC시스템창호-20210819
3. 시공 지침
창호 위치
이격 거리
고정 방법
전용 스크류 및 고정철물 사용 (고정 간격: 50~70cm, 상황별 차등 적용)표준시방서-PVC시스템창호-20210819
콘크리트·철근 간섭 고려, 최소 40mm 이상 매입표준시방서-PVC시스템창호-20210819
마감
외부 방수·투습 테이프, 내부 기밀·방습 테이프 끊김 없이 시공표준시방서-PVC시스템창호-20210819
설치 허용오차: 수직·수평 ±2mm 이내표준시방서-PVC시스템창호-20210819
4. 조정 및 유지
유리 삽입 후 창짝 수평·수직 점검 및 하드웨어 미세조정표준시방서-PVC시스템창호-20210819
청소: 모르터, 페인트, 본드, 모래, 먼지 제거표준시방서-PVC시스템창호-20210819
보양: 합성수지 보양판 설치, 손상시 보수 또는 교체표준시방서-PVC시스템창호-20210819
기밀 테스트: 최소 2회 (시공 중/준공 후) 실시표준시방서-PVC시스템창호-20210819
5. 참고 디테일
핵심 요약
PVC 시스템 창호는 열관류율, 기밀성, 단열 간봉, 이격 설치, 기밀 테이프·난연폼 충진이 품질의 핵심 포인트입니다.
시공은 단순히 창호 설치가 아니라 패시브 건축물 성능을 유지하기 위한 통합 공정으로 접근해야 합니다.